Beispiel 5:
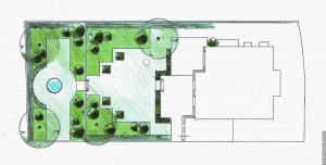
Die Hausbesitzer wünschten sich eine symmetrische Gartenaufteilung mit großzügigen Rasenflächen und pflegeleichten Beeten.
Den Schwerpunkt der Bepflanzung sollten viele Gehölze und Bodendecker in Kombination mit wenigen Staudenflächen bilden
Anforderungen:
- Farbvorliebe: weiß, blau und viele verschiedene Grüntöne
- Wasser als Quellstein oder als kleines Becken
- ein weiterer Sitzplatz im Garten in der Abendsonne
- klassische Strukturformen
Gartenberatung, Gartenplanung, Gartengestaltung Verona Michael:
Düsseldorf, Köln, Bonn, Aachen






